Schatting
location iconGeelseweg 78/1, 2250 Olen

Centraal gelegen kantoor-/handelsruimte met leuk potentieel!

€ 795 / maand

oppervlakte 120m²

Beschrijving

Centraal gelegen kantoor-/handelsruimte met leuk potentieel!

Deze kantoor- of handelsruimte bevindt zich op een centrale locatie en geniet van veel passage.
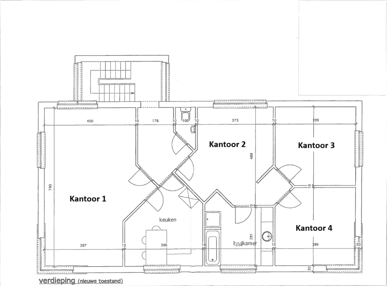
Ze situeert zich op de eerste verdieping en kan beschikken over 4 aparte kantoorruimtes. Verder is er een volledig ingerichte keuken, een badkamer met douche en dubbele lavabo en een apart toilet aanwezig. Ideaal dus voor collega's/werknemers die zich sportief naar het werk begeven.

Dit pand beschikt achter het gebouw over 3 parkeerplaatsen.

Onmiddellijk beschikbaar.
Horeca is niet mogelijk.

Wens jij je te vestigen op een centrale en interessante locatie? Twijfel dan niet en informeer via info@immovl.be of bel het nummer 014 58 02 08.

Indeling

Bewoonbare oppervlakte120 m²
Wc's1
KeukenJa

Details

KeukenJa, volledig geïnstalleerd
Ramenaluminium
Dubbele beglazingJa
Beglazingthermische en akoestische onderbreking
Verwarmingindividueel
Type verwarmingstookolie cv
GemeubeldNee

Financieel

Prijs € 795 / maand

Omgeving

Buurt handelsligging

EPC

EPC A EPC B EPC C EPC D EPC E EPC F
236 kWh/m²
EPC 236 kWh/m²
EPC klasse B
EPC code 20250515-0003596609-RES-1

Bijkomende informatie

Beschikbaar vanafonmiddellijk

Documenten

Olen Geelseweg 78_1_EPC front.pdf

Seppe Steurs
BIV: 517.698
+32 14 58 02 08

Plan een bezoek of vraag meer informatie.

Gelijkaardige panden

Deel dit pand

Blijf op de hoogte

Als eerste op de hoogte van het nieuwste aanbod?
Laat weten wat je zoekt en wij helpen je verder!

Blijf op de hoogte